

Chez les Valo
Chez les Valo
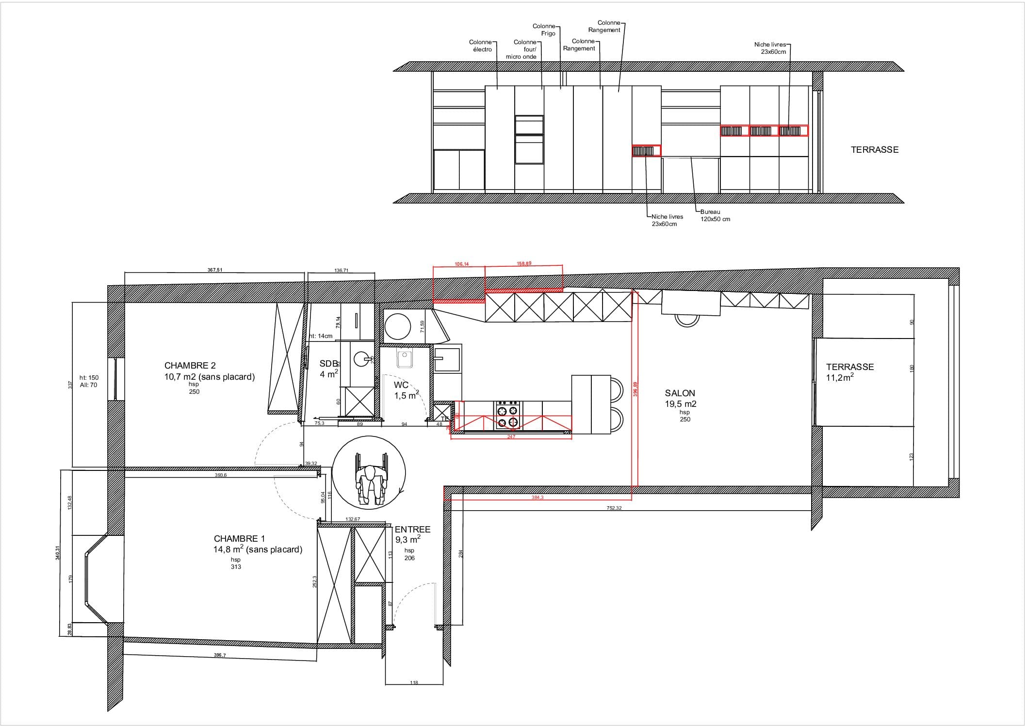
Après des dizaines d’années passé en maison, ce couple de retraiter c’est installer dans un appartement au coeur de Sarzeau.
Leurs états de santé demande à ce que l’appartement soit adapté et anticipe les futurs besoins médicaux.
Ce couple a fait appel à nous afin de rendre accessible leur appartement et lui donner plus de cohérence.
Entre recherche de rangement, d’accessibilité et de respect du budget nous avons accompagné nos clients du croquis à la remise des clés de leur projet.
Un appartement réhabiller de tête au pied, permettant à nos clients de passer sereinement cette transition entre maison et appartement.
La Conception

La Réalisation
2 Pièces
PARTICULIER
•SARZEAU
le salon

LA CUISINE
